Objekt 1 von 1
Zurück zur Übersicht
Zurück zur Übersicht

Hohentengen am Hochrhein: Attraktives Einfamilienhaus mit Einliegerwohnung in Lienheim (Hohentengen am Hochrhein))
Objekt-Nr.: GB-EFH-H9-LIEN
Schnellkontakt
Optionen
Optionen

Basisinformationen
Adresse:
79801 Hohentengen am Hochrhein
Waldshut
Baden-Württemberg
Waldshut
Baden-Württemberg
Stadtteil:
Lienheim
Preis:
489.000 €
Wohnfläche ca.:
130 m²
Grundstück ca.:
799 m²
Zimmeranzahl:
6
Weitere Informationen
Weitere Informationen
Haustyp:
Einfamilienhaus
Etagenanzahl:
2
Provisionspflichtig:
ja
Provision:
Je 3,57% inkl. 19 % MwSt: Käufer und Verkäufer
Küche:
Einbauküche
Bad:
Dusche, Fenster
Anzahl Schlafzimmer:
4
Anzahl Badezimmer:
2
Balkon:
1
Einliegerwohnung:
ja
Gäste-WC:
ja
Garten:
ja
Dachboden:
ja
Wintergarten:
ja
Keller:
voll unterkellert
Anzahl der Parkflächen:
2 x Garage
Letzte Modernisierung/ Sanierung:
2014
Qualität der Ausstattung:
normal
Baujahr:
1978
Verfügbar ab:
sofort
Bodenbelag:
Fliesen, PVC
Heizung:
Fußboden
Befeuerungsart:
Holz
Beschreibung
Beschreibung
Objektbeschreibung:
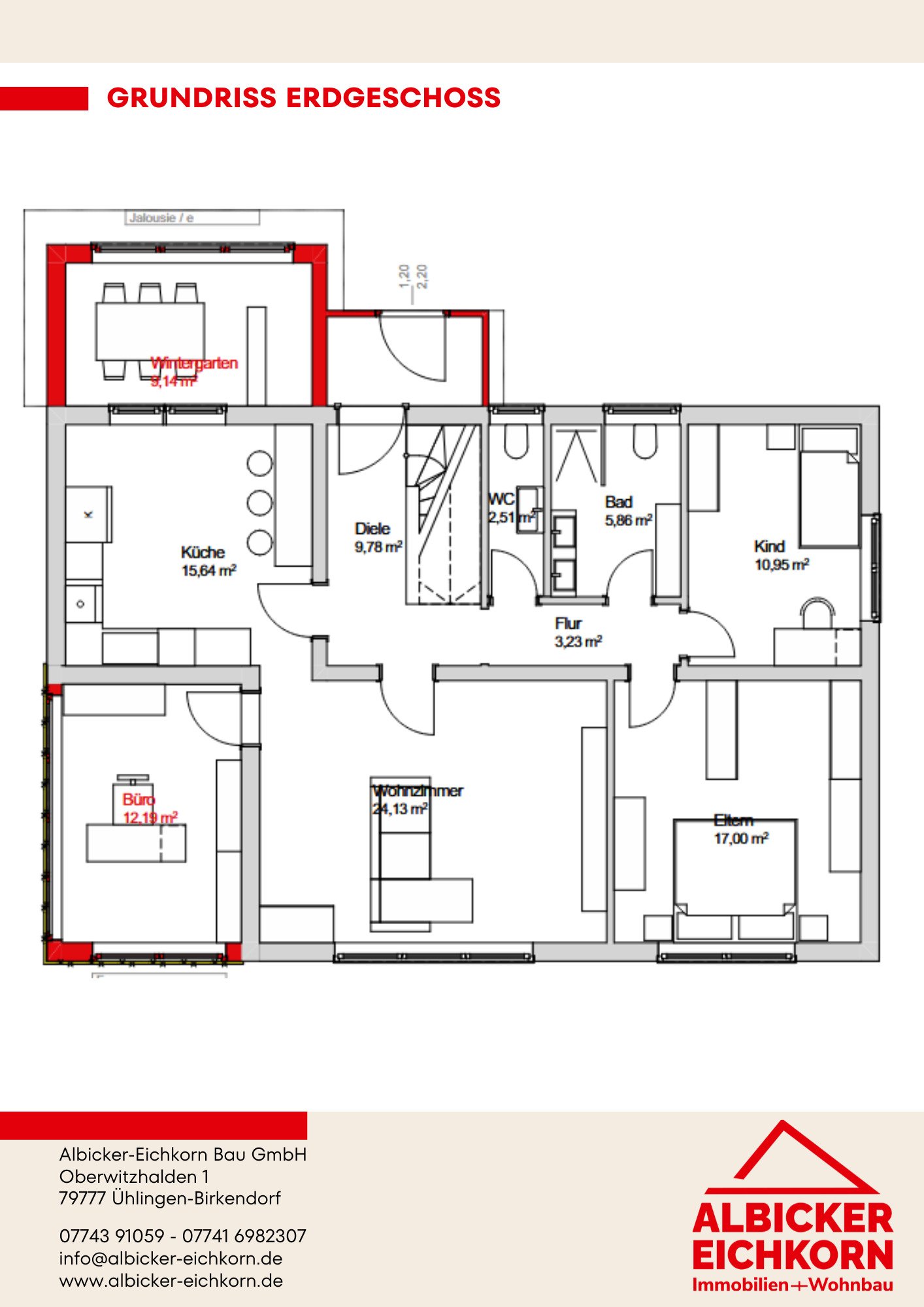
Das großzügige Wohnhaus erstreckt sich über insgesamt drei Etagen und bietet vielseitige Nutzungsmöglichkeiten für Familien und Individualisten.
Im Erdgeschoss erwarten Sie vier gut geschnittene Zimmer, eine Küche mit angrenzendem Wintergarten sowie eine moderne Einbauküche, die bereits im Kaufpreis enthalten ist.
Ein gepflegtes Badezimmer sowie ein separates WC runden das Raumangebot auf dieser Ebene ab.
Das Dachgeschoss beherbergt derzeit einen geräumigen Dachboden, der dank seines großen Ausbaupotenzials zusätzliche Wohn- oder Nutzfläche bietet und individuell nach den eigenen Vorstellungen gestaltet werden kann.
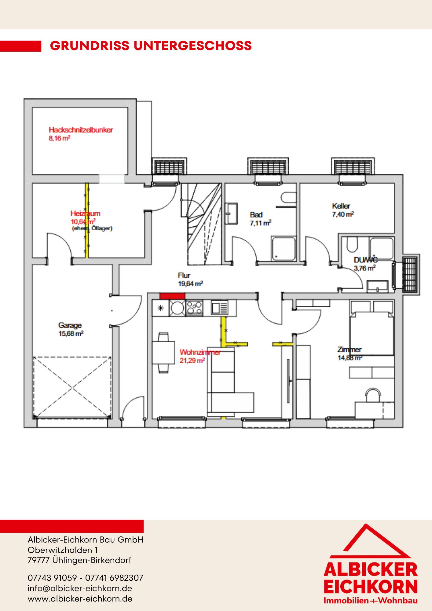
Im Untergeschoss befindet sich eine Einliegerwohnung mit separatem Eingang, die sich ideal für Gäste oder als Mietwohnung eignet.
Zusätzlich bietet das Haus einen Keller für ausreichend Stauraum.
Zum Anwesen gehören außerdem zwei Garagen sowie zwei Stellplätze vor dem Haus, die für komfortables Parken sorgen.
Ein besonderes Highlight ist der große Garten, der viel Platz zum Spielen und Entspannen bietet und sich perfekt für Familien mit Kindern eignet.
Im Erdgeschoss erwarten Sie vier gut geschnittene Zimmer, eine Küche mit angrenzendem Wintergarten sowie eine moderne Einbauküche, die bereits im Kaufpreis enthalten ist.
Ein gepflegtes Badezimmer sowie ein separates WC runden das Raumangebot auf dieser Ebene ab.
Das Dachgeschoss beherbergt derzeit einen geräumigen Dachboden, der dank seines großen Ausbaupotenzials zusätzliche Wohn- oder Nutzfläche bietet und individuell nach den eigenen Vorstellungen gestaltet werden kann.
Im Untergeschoss befindet sich eine Einliegerwohnung mit separatem Eingang, die sich ideal für Gäste oder als Mietwohnung eignet.
Zusätzlich bietet das Haus einen Keller für ausreichend Stauraum.
Zum Anwesen gehören außerdem zwei Garagen sowie zwei Stellplätze vor dem Haus, die für komfortables Parken sorgen.
Ein besonderes Highlight ist der große Garten, der viel Platz zum Spielen und Entspannen bietet und sich perfekt für Familien mit Kindern eignet.
Ausstattung:
Heizung: Hackschnitzelheizung aus 2013
Fenster: doppelt verglaste Fenster aus dem Jahr 2014
Bodenbelag: Fliesen und Venyl
PV-Anlage 12,9 kWp aus dem Jahr 2019
Fenster: doppelt verglaste Fenster aus dem Jahr 2014
Bodenbelag: Fliesen und Venyl
PV-Anlage 12,9 kWp aus dem Jahr 2019
Lage:
Das Haus befindet sich in der idyllischen und familienfreundlichen Gemeinde Lienheim, einem Ortsteil der Stadt Küssaberg. Die ruhige Lage und das ländliche Ambiente machen Lienheim zu einem attraktiven Wohnort für Familien und Naturliebhaber.
Der Ortskern mit Einkaufsmöglichkeiten für den täglichen Bedarf, Kindergarten, Grundschule und ärztlicher Versorgung ist schnell erreichbar. Weitere Geschäfte, Schulen und Freizeitangebote befinden sich in den umliegenden Ortschaften sowie in Waldshut-Tiengen, das nur wenige Fahrminuten entfernt liegt.
Die Nähe zur Schweizer Grenze macht Lienheim besonders attraktiv für Berufspendler. Spazier- und Radwege entlang des Rheins sowie die reizvolle Umgebung laden zu erholsamen Freizeitaktivitäten ein.
Der Ortskern mit Einkaufsmöglichkeiten für den täglichen Bedarf, Kindergarten, Grundschule und ärztlicher Versorgung ist schnell erreichbar. Weitere Geschäfte, Schulen und Freizeitangebote befinden sich in den umliegenden Ortschaften sowie in Waldshut-Tiengen, das nur wenige Fahrminuten entfernt liegt.
Die Nähe zur Schweizer Grenze macht Lienheim besonders attraktiv für Berufspendler. Spazier- und Radwege entlang des Rheins sowie die reizvolle Umgebung laden zu erholsamen Freizeitaktivitäten ein.
Sonstiges:
Im Unter- sowie im Dachgeschoss sind die Grundinstallationen bereits vorhanden, der Endausbau dieser Bereiche steht jedoch noch aus.
Anmerkung:
Die von uns gemachten Informationen beruhen auf Angaben des Verkäufers bzw. der Verkäuferin. Für die Richtigkeit und Vollständigkeit der Angaben kann keine Gewähr bzw. Haftung übernommen werden. Ein Zwischenverkauf und Irrtümer sind vorbehalten.
AGB:
Wir weisen auf unsere Allgemeinen Geschäftsbedingungen hin. Durch weitere Inanspruchnahme unserer Leistungen erklären Sie die Kenntnis und Ihr Einverständnis.
AUF WUNSCH empfehlen wir Ihnen Finanzierungsexperten von namhaften Häusern wie der Bausparkasse Mainz, der Deutschen Vermögensberatung und anderen.
Ihr Ansprechpartner
